مشاريع البناء
 
النفط والغاز، الطاقة والبنى التحتية
 

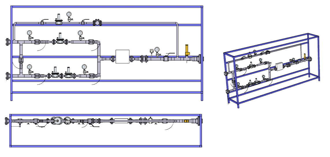
رام - 2024
تجديد
موقد كلاوس SRU-1

لايفكو 2023/2024
استبدال LTP-2222 لـ HPCC E-202
في مصنع اليوريا 2


2019
الهندسة التفصيلية متعددة التخصصات
تركيب خزانات جديدة للنيتروجين N2 لتحميل ATB
Air Liquide - مصفاة جيلا

مصفاة ISAB منشآت الشمال
2018
إعادة تأهيل من أجل التشغيل
تشغيل وحدة التوبينغ CR30
التصميم، البرمجة، الدعم، وتنسيق أنشطة تشغيل وحدة CR30 (توبينغ) في مصفاة ISAB بريولو جي، مع التحقق والتعديل الزلزالي (NTC2008) للأنابيب والهياكل في القسم، وللأنظمة الوقائية النشطة والساكنة لخدمة المعدات والهياكل المعدنية والخرسانية المسلحة، وتصميم وشهادة أنظمة الحماية وفقًا للوائح VVF السابقة 818.
إعداد دوائر اختبار الخطوط الحرجة وغير الحرجة، وتصميمات التكيف والتحسين التكنولوجي.

2018
دراسة شبكة مياه التبريد (CW)
ساسول أوغوستا

2016
تصميم السقالة
فيرساليس رافينا
تصميم سقالة وإعداد الدليل (للتجميع، الاستخدام، النقل، والتفكيك) لاستخدامه مع الخزانات المغطاة بالتربة لتنفيذ الفحوصات غير التدميرية (CND) وإجراء الإصلاحات على الغلاف (خصوصاً على اللحامات الداخلية للمعدات).

رام ميلاتسو - 2014
توريد EPC
تحسين كفاءة الطاقة للفرن في منشأة توبينغ-3

2014
شذوذات في نظام إزالة الرطوبة من الحمأة الكيميائية لوحدة معالجة مياه الجوف (TAF) في منشأة سنديال في بريولو غارغالو (SR).

إيزاب إنيرجي - 2013
توريد EPC
صيانة الخزان 3400-TK-101 - مصنع IGCC: تنظيف ومعالجة الرواسب عن طريق الطرد المركزي والضغط بالفلتر مع استبدال السقف وهيكل السقف والألواح لآخر حلقتين.

2013
الهندسة التفصيلية متعددة التخصصات
منشأة جديدة (TGC) لمعالجة غاز الذيل في وحدة CLAUS الحالية وربطها بشبكات أخرى
سايبم - مصفاة جِلا.

2010
دراسة الجدوى وتقدير التكلفة لمشروع جديد
مركز النفط 'حقل خوربرت الشرقي CPF
سايبم سوريا

2009
هندسة وإنشاء خط جانبي جديد P2 من الرايزر إلى الرصيف في مصفاة جيلا.

إيني - مصفاة ساناتزارو
حسابات FEM للمعدات لتلبية ظروف التصميم الجديدة.
بونتيروسو كومارت S.p.A. هي الرائدة في الحلول المتقدمة للهندسة متعددة التخصصات.
 
  
  
 

 
  
 

 
  
 





 
  
 






 
  
 
 
  
 















 
  
 




 
  
 

 
  
 




 
  
  
  
  
  
  
  
  
  
  
  
  
  
 






